STUDIO AFTER NOW

UN STUDIO UNIQUE AU MONDE À TOULOUSE MÊLANT HIGH TECH ET VINTAGE

Maître d’ouvrage : After Now Records
Maître d’œuvre : Red House Acoustics
Entreprise générale : Red House Factory
Lieu : Toulouse

Dans le studio After Now cohabitent machines analogiques mythiques, systèmes Dolby Atmos, synthés modulaires et compresseurs de légende.

Un lieu qui produit du son, certes, mais qui aussi, le sculpte. Le son du grand studio est dense, net. Les murs absorbent, la moquette vibre. On comprend rapidement que tout ici est pensé pour ça : écouter et ressentir.

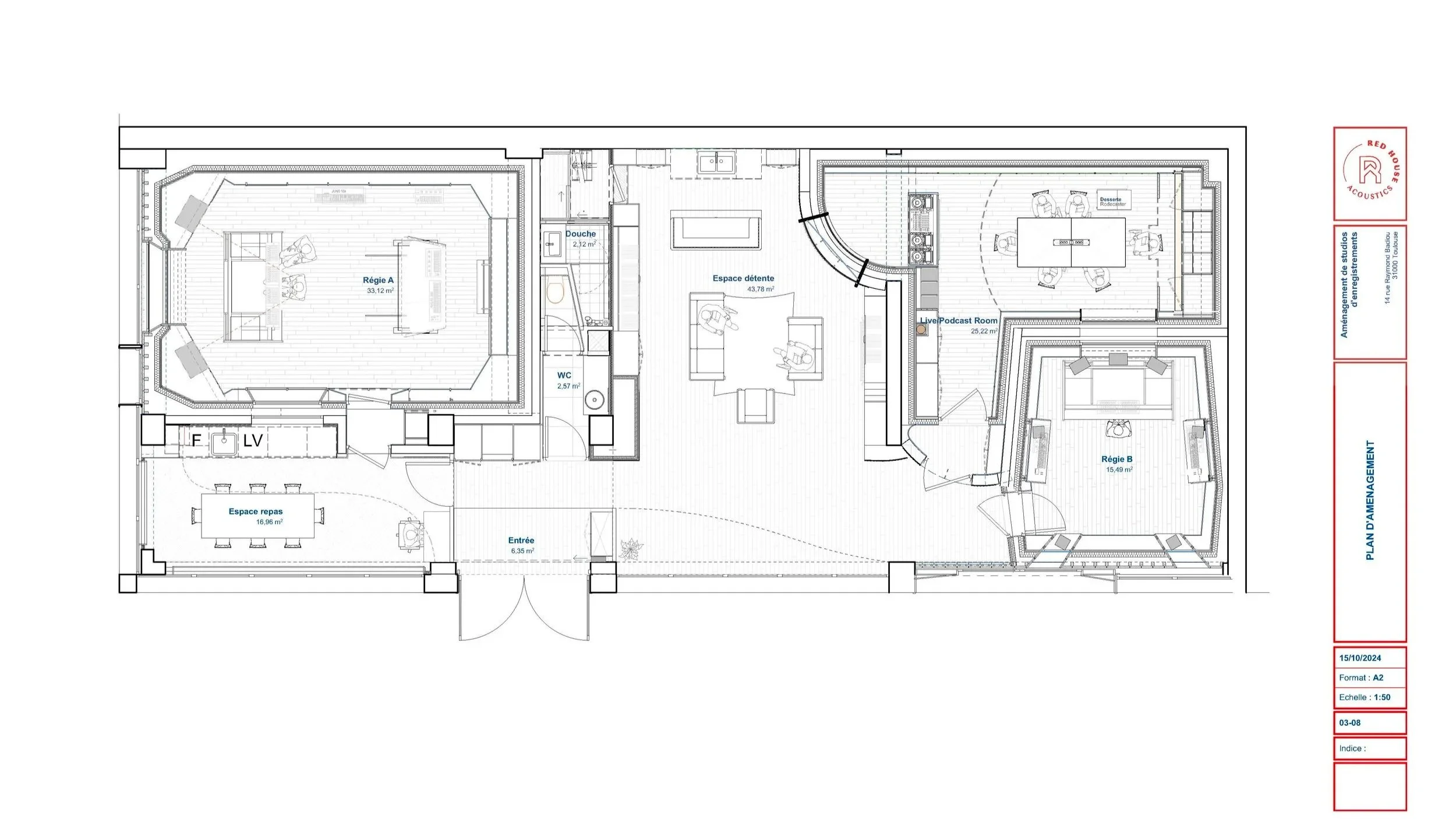
Au total, quatre espaces interconnectés : un grand studio stéréo, une "live room" polyvalente, un studio Dolby Atmos et un auditorium transformable en salle de projection ou de conférence. L’ensemble pensé pour dialoguer et être mobile.

Dans ce studio dédié à la musique House au sens large l’idée est de faire vivre aux artistes une expérience inédite en mettant à disposition des instruments historiques des débuts de la musique électronique alliés aux outils de création les plus récents.

« Gilles (After Now) : Lucas, j’aimerais créer le studio de mes rêves, mais j’ai besoin d’être accompagné pour le concrétiser.
Lucas (Red House) : Je descends sur Toulouse dès que tu as trouvé des endroits disponibles. On viendra avec ce qu’il faut pour les mesures acoustiques.

Deux mois après, ensemble, à 200 m du Zénith de Toulouse.
L : Que veux-tu ressentir lorsque tu entres ici ?
G : Je veux me sentir accueilli dans un endroit chaleureux, partagé par des passionnés de musique électronique. J’aimerais qu’on s’y sente en sécurité et libre. Le studio a un seul but : créer des moments uniques autour de ce qui compte le plus : le son.
L : OK ! Alors peut-être que là, tu vois, on pourrait diviser le plateau en quatre espaces… Un lounge ici, un grand studio par là...

Douze mois de chantier plus tard. Inauguration des studios.
L : Voilà. Tu l’as voulu… Tu l’as !
G : Merci, Red House. Vous êtes des génies. »
Suivant
Suivant

Flux Studios